Zürich, 2012
Entwurf, Projekt- und Bauleitung für Losinger Architekten
Bauherr: privat
Büro: Losinger Architekten
Fotos: Thema Fotografie, Theodor Stalder
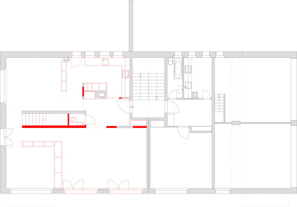
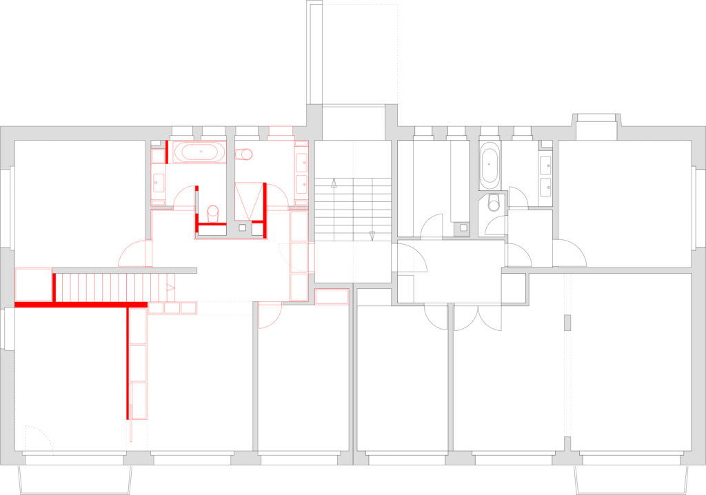
Im Rahmen des Umbaus wurde durch die Zusammenlegung von zwei 3-Zimmer-Wohnungen des 40er-Jahre-Mehrfamilienhauses am Zürichberg eine grosszügige, helle und offene Wohnung mit Gartenzugang. Ziel des Umbaus war es neben der Verbindung der Geschosse, den klassischen Grundriss der Wohnungen zu öffnen und die Wohnung stärker als zuvor zum Garten hin zu orientieren. Das Wohnzimmer erhält durch die Öffnung der Süd-Ost-Fassade mit zwei bodenebenen Fenstern eine direkte Verbindung in den Garten und wird so optisch erweitert. Den Kern der Wohnung bildet die neue interne Treppe. Im unteren Gartengeschoss ordnen sich alle Räume um den Treppenkern und gehen ineinander über. Durch die teilweise geschlossenen und teilweise offenen Einbaumöbel, findet in den Geschossen, vor allem aber im Gartengeschoss, eine Ausdifferenzierung der funktionalen Bereiche im relativ offenen Grundriss statt. Im Obergeschoss befinden sich die privaten Räume, wie Schlaf- und Badezimmer. Auch hier öffnet sich ein Raum, getrennt durcheinen sichtdurchlässigen Raumtrenner zum Flurbereich hin, so dass dieser natürlich belichtet wird. Der offene Charakter der gesamten Wohnung wird durch das durchgängige Bodenmaterial, einem mineralischen Boden, unterstrichen. Das Herzstück des Umbaus bilden die für die Wohnung konzipierten Möbel, die sowohl funktional als auch raumbildend sind. Der Umbau weist eine reduzierte Farbgebung, sowie klare Formsprache auf. Auch die zwei Badezimmer im oberen Geschoss wurden mit Einbaumöbeln ausgestattet. Durch die hier entwickelte Nischenlösung und die reduzierte Form der Möbel wirken die Bäder trotz ihrer kleinen Grundfläche geräumig. Als Kontrast zu der dezenten und hellen Farbgebung von Boden und Möbeln sind die Nassbereiche mit petrol-farbenen Fliesen ausgekleidet. Ein ähnlicher Kontrast über das Material und die Farbgebung findet sich in der Küche mit Möbeln aus Nussbaum im Gartengeschoss.











